Neues in flixo 8.1

Steigen Sie auf flixo 8.1 um und profitieren Sie von den zahlreichen Verbesserungen und neuen Funktionen mit gewohnter Bedienung.
Benutzer mit laufendem Softwarepflegevertrag erhalten dieses Update kostenlos.

Resultate

  • Berechnung der Feuchtigkeitsverteilung (Dampfdiffusion) innerhalb des Bauteils nach Glaser
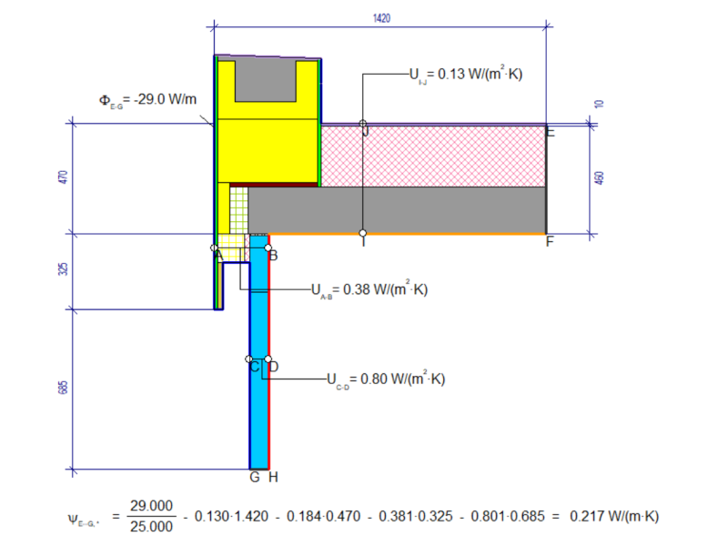
  • Psi-Wert Werkzeug "Benutzerdefiniert"
  • Benutzerdefinierte Uf-Wert und UTj-Wertberechnung
  • Berechnung der Ufr- und Ueg-Werte gemäss ISO 15099
  • Tolerantere Rolladenkasten U-Wertberechnung
  • Berechnungen von Kennwerten können mit anderen Berechnungen verknüpft werden und werden automatisch aktualisiert, falls sich ein Kennwert ändert
  • Material- und Randbedingungstabellen mit ausblendbaren Kolonnen und Sortiermöglichkeiten

Modell und Import

  • Automatisches Erzeugen von Modellvarianten mittels Regeln (Ersetzen von Materialien, Randbedingungen und Glaspaketen, Ändern von parametrisierten Bauteilen, Berechnung der Dampfdiffusion nach Glaser)
  • Import von THERM Dateien und Berechnungen
  • Berechnung der Lufthohlraumkennwerte gemäss ISO 15099 und Randbedingungen gemäss NFRC 100 (zusätzliches Modul)
  • Erweitertes Glaspaketobjekt mit integrierten und benutzerdefinierten Randvebunden. Alternative Methode der Definition bei gegebenen Gasfüllungsarten und Oberflächeneigenschaften der Gläser
  • Angepasste Gitterunterteilung bei singulären Stellen
  • Erweiterte Unterstützen der Mehrsprachigkeit und der Einheitensysteme

Benutzeroberfläche

  • Im Ebenen-Flyout können Objekte einzeln gelöscht, verschoben und angezeigt werden
  • Stile sind im Stil-Flyout gruppiert
  • Neues Beschriften Werkzeug
  • Hilfslinien können gedreht werden
  • Ein Material kann allen Objekten einer Gruppe mit gedrückter SHIFT Taste zugewiesen werden
  • Erweiterte Möglichkeiten, die Eigenschaften der markierten Objekten im Eigenschaften-Flyout zu bearbeiten